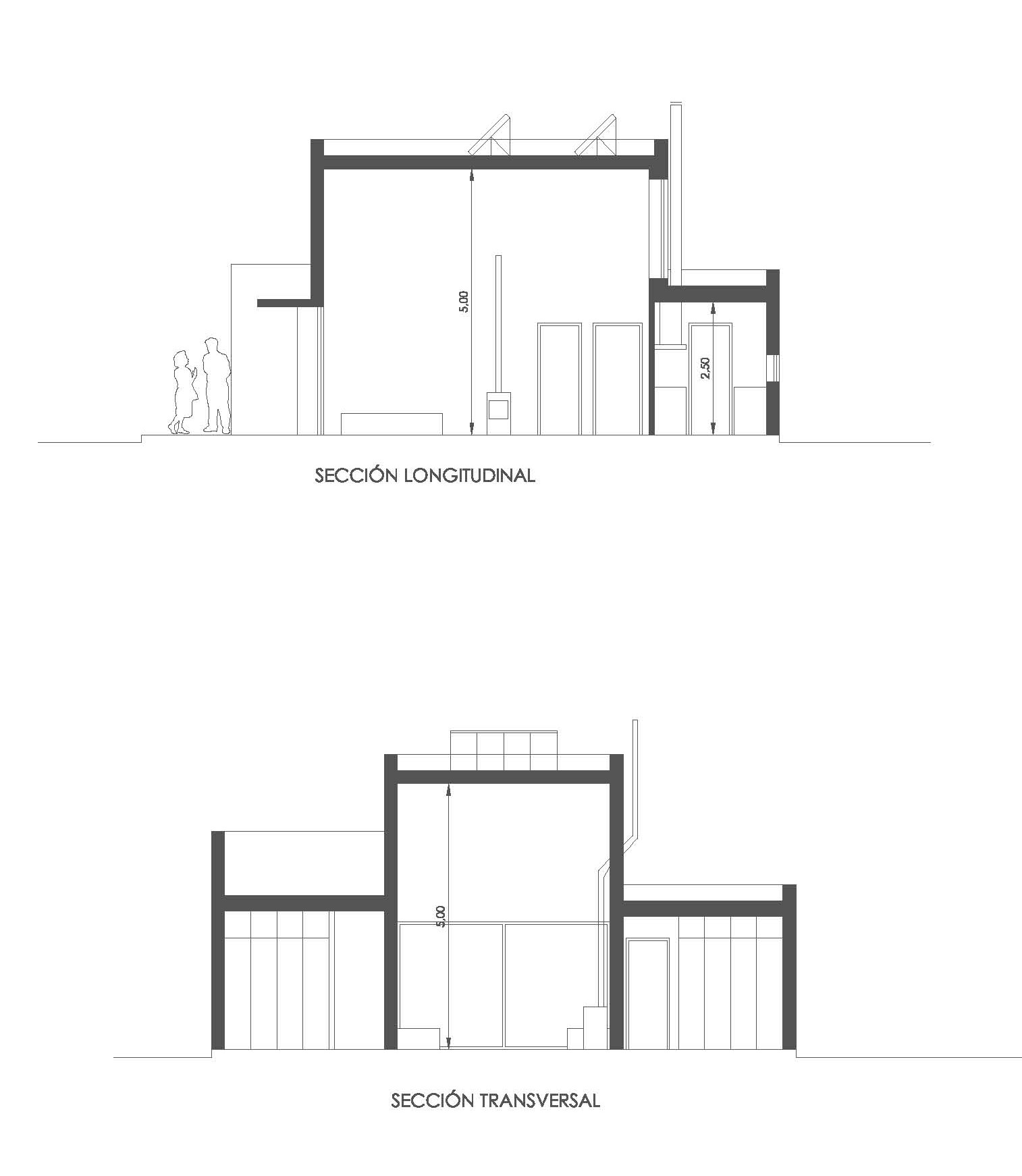
Secciones casa 3 diciembre 27, 2014 1514 × 1742 Secciones casa 3 Secciones transversal y longitudinal Secciones casa 3